Projet de Reconstruction d'une Maison Individuelle

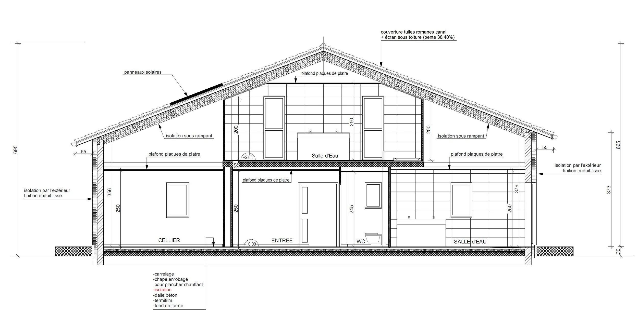
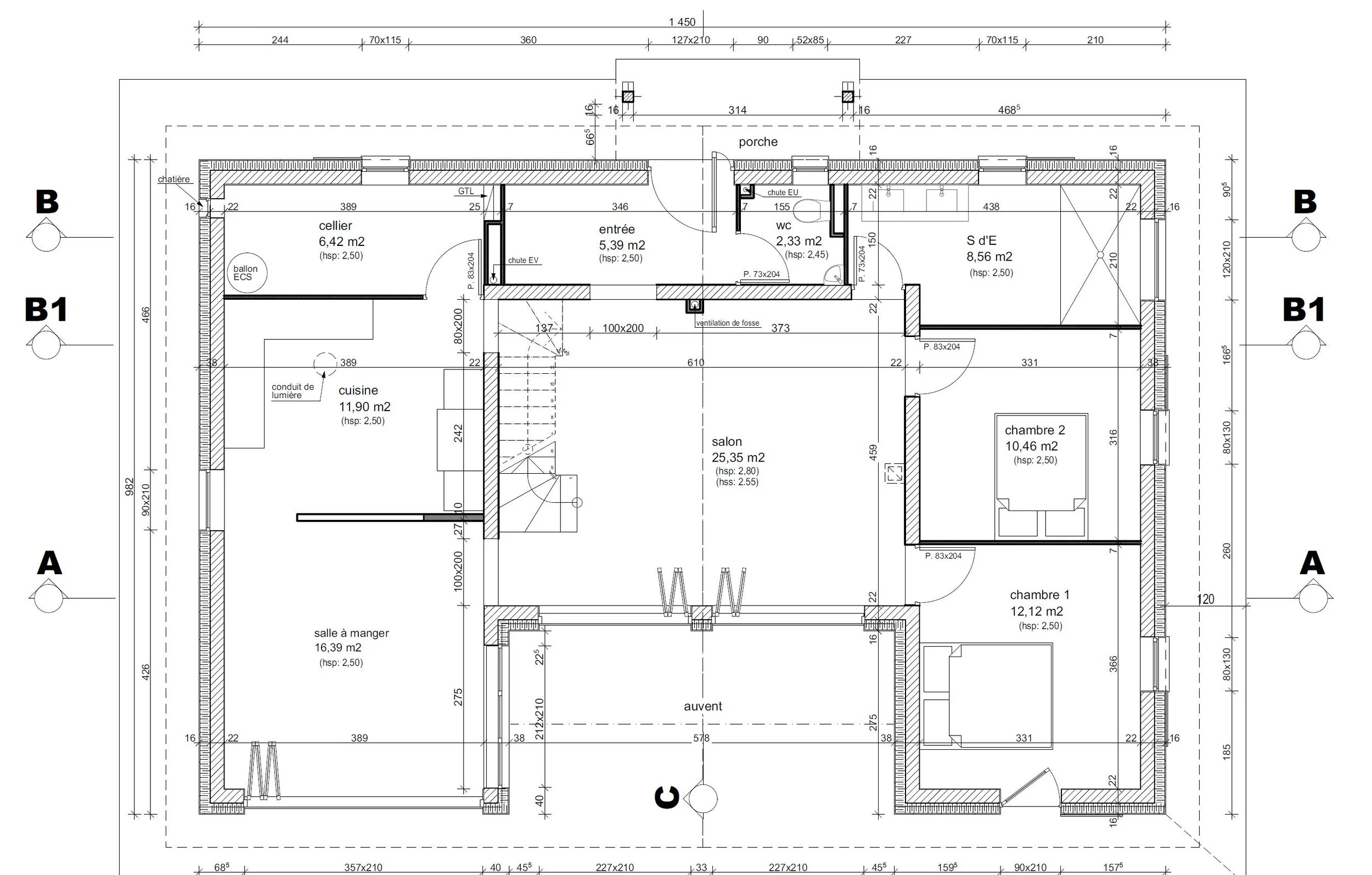
Ce projet a impliqué la reconstruction d'une maison individuelle suite à un incendie, située dans le Sud-Gironde.

Le coût total des travaux s'est élevé à 300 000 € HT. Les travaux ont été achevés et la maison a été livrée à l'automne 2022.

Le maître d'ouvrage pour ce projet était un particulier, et la maison est destinée à être utilisée comme résidence principale.

Suivant
Suivant

Commerces