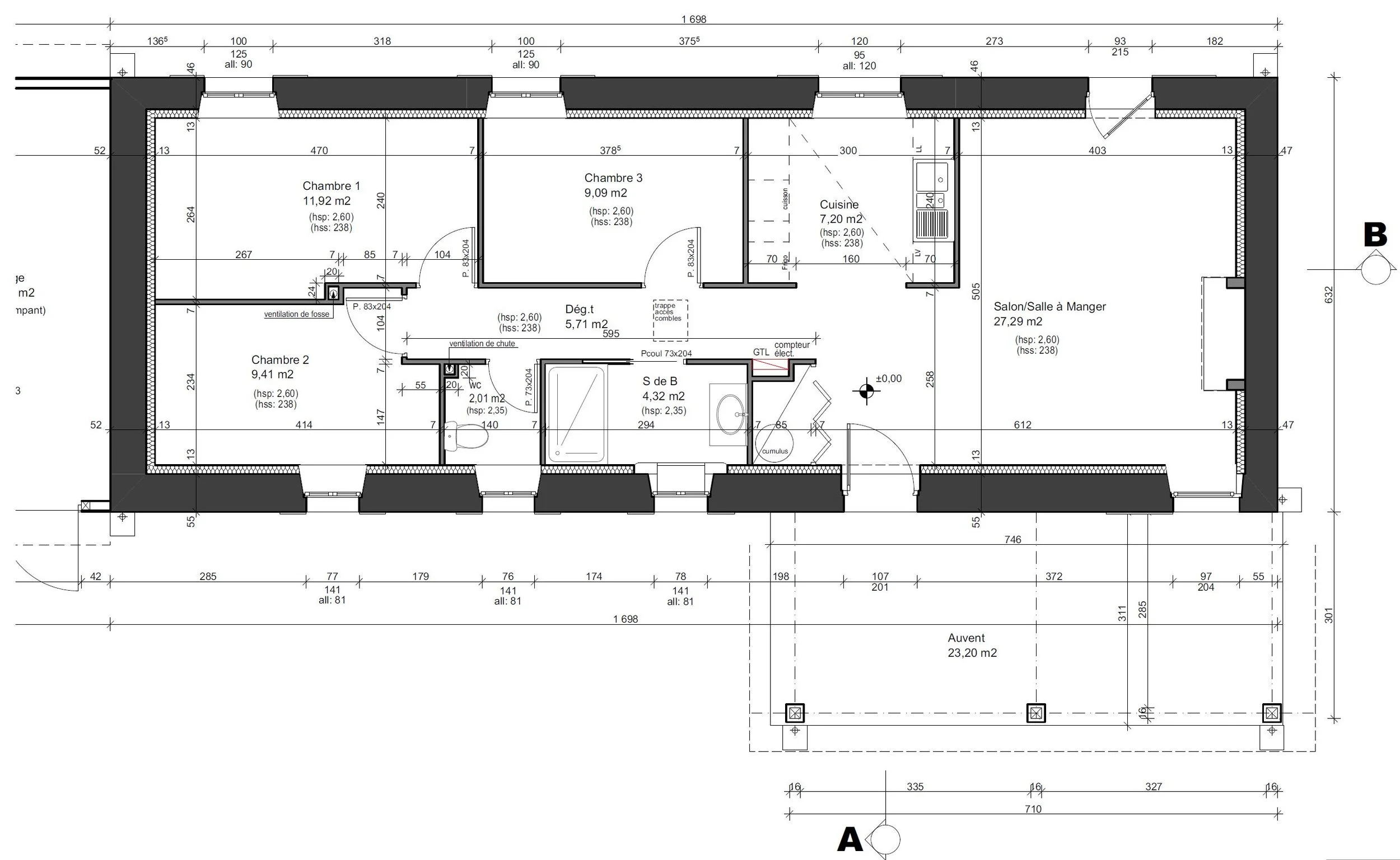
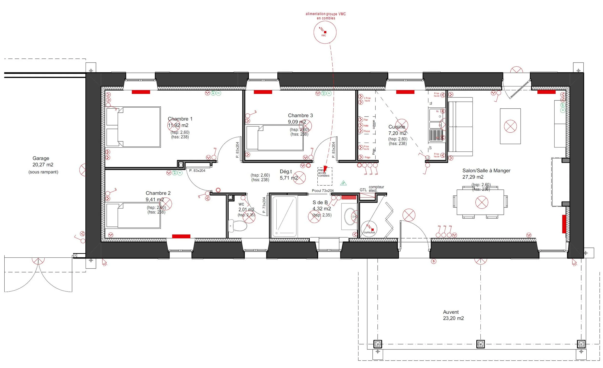
Projet de Rénovation d'une Maison Individuelle

Ce projet porte sur la rénovation d'une maison individuelle située dans le Sud-Gironde.

Le coût total des travaux est estimé à 150 000 € HT, avec une livraison prévue pour le printemps 2023.

Le maître d'ouvrage pour ce projet est un particulier, et la maison est destinée à être utilisée comme bien locatif.

Cette rénovation vise à améliorer l'attrait et la fonctionnalité de la maison pour les futurs locataires.

Précédent
Précédent

Logement collectif

Suivant
Suivant

Activité / Santé